疲れたらテラスで一息!!
| ミニログハウスシリーズ | |
コスカA |
|
| 趣味に没頭するには、最高の部屋です! | |


コスカA道具部屋
コスカAで店舗
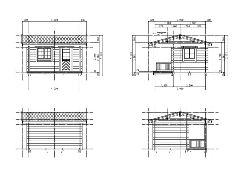
コスカA立面図
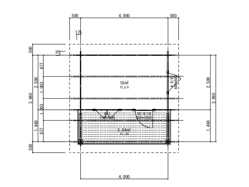
コスカA平面図
| ■価格帯(運送・基礎工事・組立工事・ライフライン接続工事・消費税別) | ||
| A)倉庫出しキット価格:109万円~ B)キット+基礎用沓石倉庫出し価格:114万円~ |
||
| ■寸法(cm) | ||
| ハウス部:間口巾290 × 奥行330 × 全高263cm テラス部:間口巾290 x 奥行100cm |
||
| ■外装 | 屋根 | アスファルトシングル材、OP: オンジュブラ洋風瓦 |
| 外壁 | ホワイトパイン角ログ50mm | |
| ■内装 | 天井 | ホワイトパイン野地板兼天井板 |
| 内壁 | ホワイトパイン角ログ50mm | |
| 基礎 | OP: ブロック基礎、独立基礎、布基礎等より予算に合わせて選択 | |
| 床 | 床板28mmパイン材 | |
| ■電気・設備 | 電気配線 | OP: コンセント数、スイッチ数、エアコン用コンセント、分電盤仕様など打合せの上、決定 |
| 照明器具 | OP: 打合せの上、決定 | |
| ブレーカー | OP: 打合せの上、決定 | |
| 設備 | ||
| 特殊設備 |
|
|
| 給排水 | オプション対応 | |
| ■建具 | 玄関扉 | 北欧製木製格子入りドア(ガラス) |
| 主要建具 | 側面:格子入り観音開きガラス窓×1 | |




























